Deckel für Anbau-Abzweigstück mit D rehriegel B200, St, FT
2906774
LAAD200R3FT
6226330
auf Anfrage
je 1 St
Lieferzeit auf Anfrage
Verfügbarkeit beim Hersteller:
Verpackungseinheiten
| 1 St | Menge übernehmen |
Funktionen
Verkaufsdaten
| Mindestbestellmenge | 1 St |
| Bestellschritt | 1 St |
Beschreibung
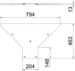
Deckel mit Drehriegeln für die Abdeckung von Anbau-Abzweigstücken mit geschweißten Sprossen.
Merkmale
| Marke | OBO |
| FEGIME | 2906774 |
| Herstellerbezeichnung | LAAD200R3FT |
| MPN | 6226330 |
| GTIN / EAN | 4012196536399 |
| Artikelklasse | Deckel Anbau-Abzweigstück für Kabeltragsystem |
| Farbe | Zink |
| Befestigungsart | Drehriegel |
| Breite | 200 |
| Werkstoff | Stahl |
| Geeignet für Kabelleiter | Ja |
| Geeignet für Kabelrinne | Nein |
| Oberflächenschutz | feuerverzinkt |
| Zolltarifnummer | 73089059 |
| RoHS-konform | NOT_CONFORM |