Brandschutzkanal FWK90 100x1600,5m vw
8913958
FWK99916009016
auf Anfrage
je 1 St
Lieferzeit auf Anfrage
Verfügbarkeit beim Hersteller:
Verpackungseinheiten
| 1 St | Menge übernehmen |
Funktionen
Verkaufsdaten
| Mindestbestellmenge | 1 St |
| Bestellschritt | 1 St |
Beschreibung
Brandschutzkanal Funktionserhalt E90/E30 FWK 90 100x160mm L=0,5m verkehrsweiß.Feuerwiderstandsfähiger Leitungsführungskanal FWK90 - E90 nach DIN 4102-12 zum Funktionserhalt bei Wand- und Deckenmontage und E30 nach DIN 4102-12 zum Funktionserhalt bei abgehängter Montage. Kanalunterteil mit abnehmbarem und mehrmals verschraubbarem Kanaloberteil. Allgemeines bauaufsichtliches Prüfzeugnis P-MPA-E-99-062 oder P-BWU-I 17.9.2.
Merkmale
| Marke | Hager |
| FEGIME | 8913958 |
| Herstellerbezeichnung | FWK99916009016 |
| GTIN / EAN | 4012740019606 |
| Artikelklasse | Brandschutzkanal |
| Farbe | weiß |
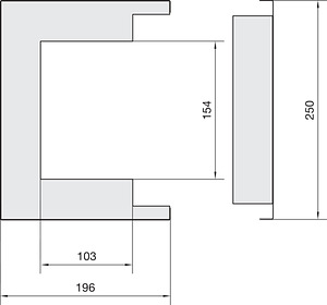
| Außenbreite | 250 |
| Außenhöhe | 196 |
| Deckelbefestigung | verschrauben |
| Feuerwiderstandsklasse E - Funktionserhalt | 90 |
| Innenbreite | 154 |
| Innenhöhe | 103 |
| Isoliermaterial | sonstige |
| Länge | 500 |
| Nutzbarer Querschnitt | 15862 |
| Oberflächenschutz | beschichtet |
| RAL-Nummer | 9016 |
| Trennwände möglich | Ja |
| Ummantelung | Stahl |
| Zolltarifnummer | 73269098 |
| RoHS-konform | CONFORM |