-SET- Teleskopierbare Fangstange L5,2m Al mit Dreibeinstativ R560mm St/tZn
8145278
105711
auf Anfrage
je 1 St
Preis und Verfügbarkeit nach Anmeldung
Verfügbarkeit beim Hersteller:
Verpackungseinheiten
| 1 St | Menge übernehmen |
Funktionen
Verkaufsdaten
| Mindestbestellmenge | 1 St |
| Bestellschritt | 1 St |
Beschreibung
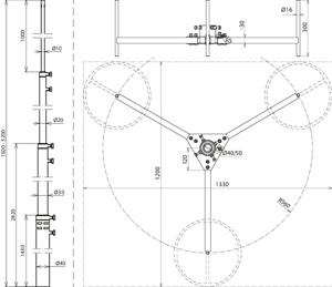
Teleskopierbare Fangstange freistehend mit klappbarem St/tZn Dreibeinstativ. Zum Schutz von größeren Dachaufbauten, mit Anpassung an die Dachneigung bis max. 10°. Die Fangstangen sind nach Eurocode 1 (DIN EN 1991-1-4 + DIN EN 1991-1-4/NA) für eine max. Böenwindgeschwindigkeit von 183 km/h dimensioniert. Ausführung mit Höhe 5200 mm.
Merkmale
| Marke | Dehn |
| FEGIME | 8145278 |
| Herstellerbezeichnung | 105711 |
| GTIN / EAN | 4013364500976 |
| Artikelklasse | Anschlussklemme für Blitzschutz |
| Anschluss | Rundleiter |
| Ausführung | Fangstange |
| Durchmesser | 10...40 |
| Hochspannungsfeste isolierte Ausführung | Nein |
| Länge | 5200 |
| Oberflächenschutz | unbehandelt |
| Teleskopisch | Ja |
| Werkstoff | Aluminium |
| Zolltarifnummer | 85389099 |